MOBIRISE
Home
3D
Photos
360°
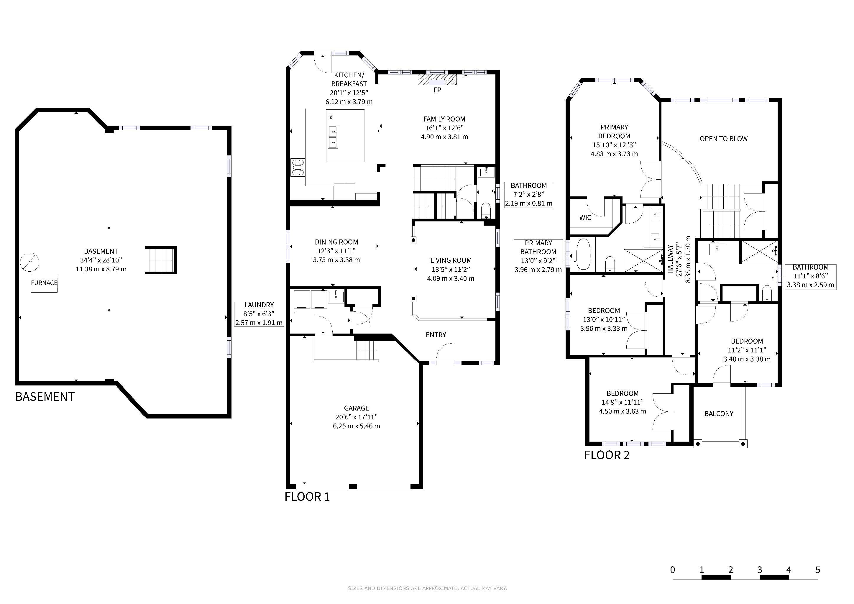
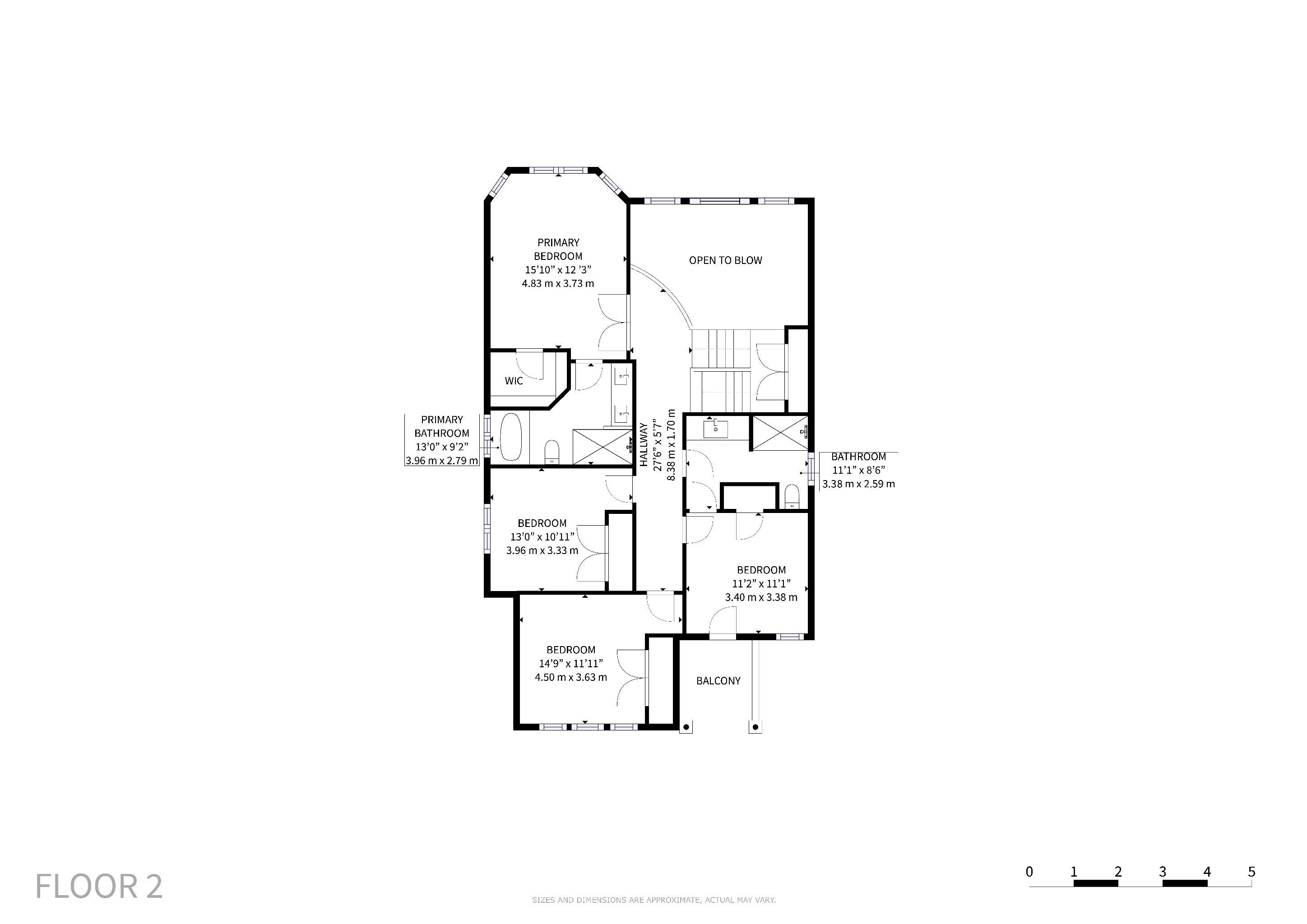
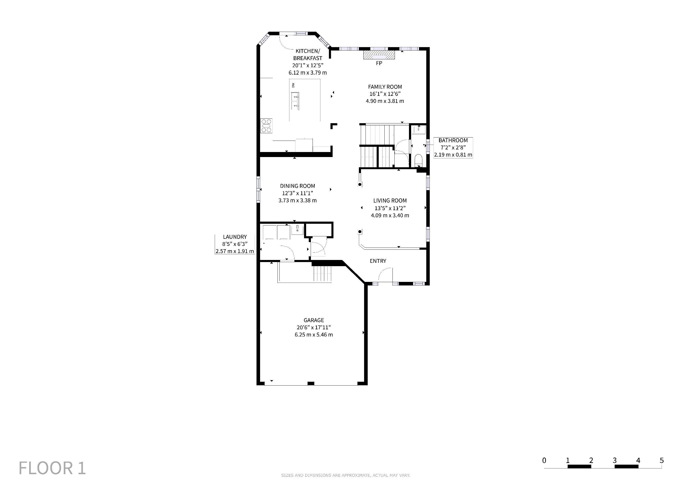
Floorplan
Schools
Map
Details
101 Ravine Edge Drive
Richmond Hill
SZE KING LAU
Broker
Direct:
416-908-9292
Office:
905-888-6201
szelau.fhg@gmail.com
3D Tour
Photos
x
Close
Show all photos
360° Virtual Tour
Floorplan
x
Close
Details
Schools
Map
Book an appointment
Submit successfully.
Submit failed!
Name *
Email *
Phone *
Which listing address do you want to book a showing?
Message
Send
Sending...