MOBIRISE
Home
3D
Photos
360°
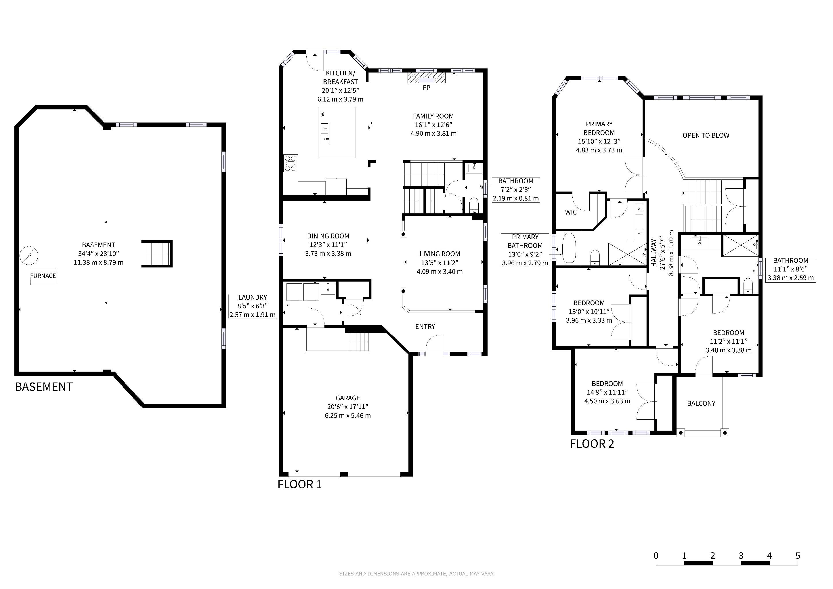
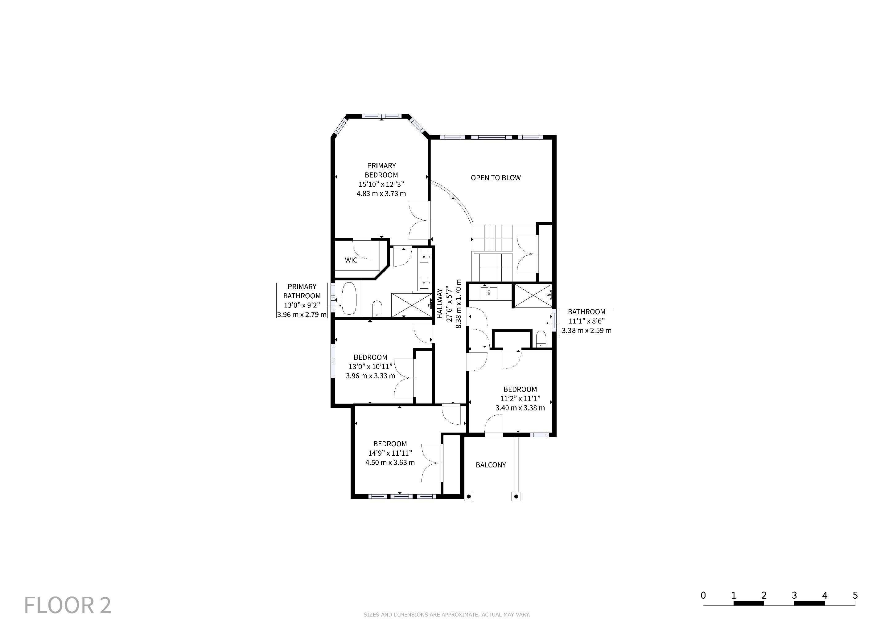
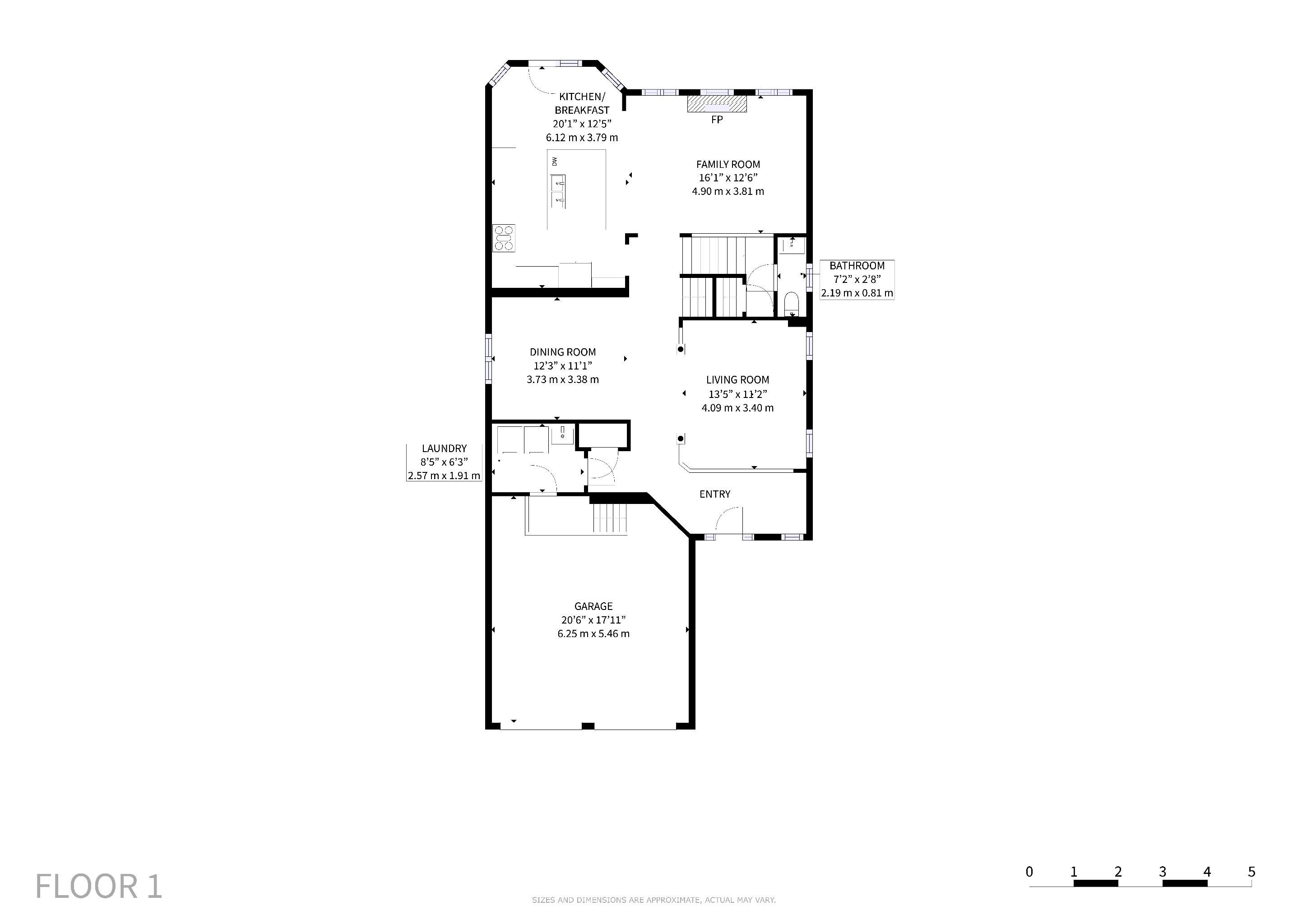
Floorplan
Schools
Map
Details
101 Ravine Edge Drive
Richmond Hill
3D Tour
Photos
x
Close
Show all photos
360° Virtual Tour
Floorplan
x
Close
Details
Schools
Map