9 Coates Crescent
Richmond Hill

 3D Tour
 Photos
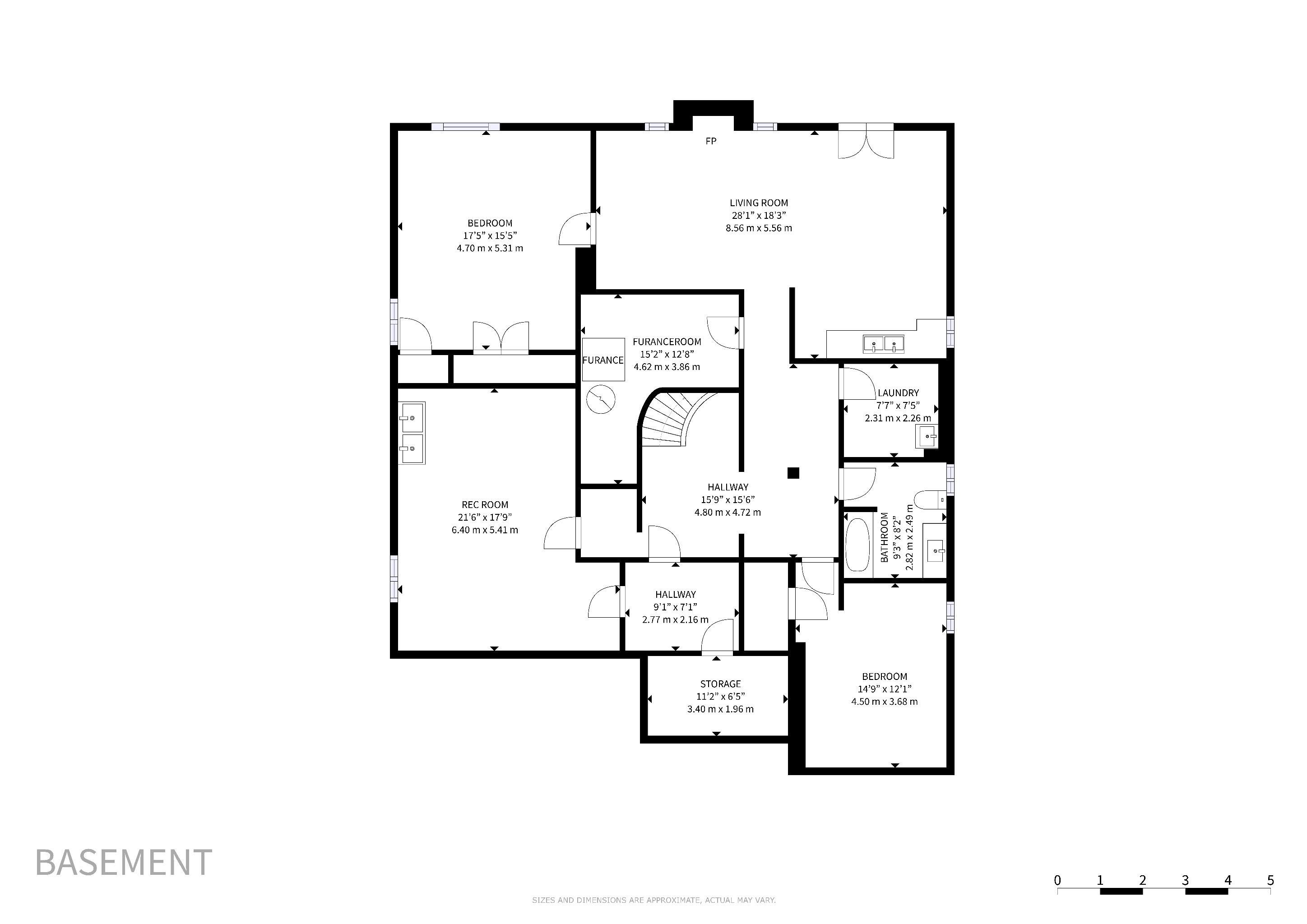
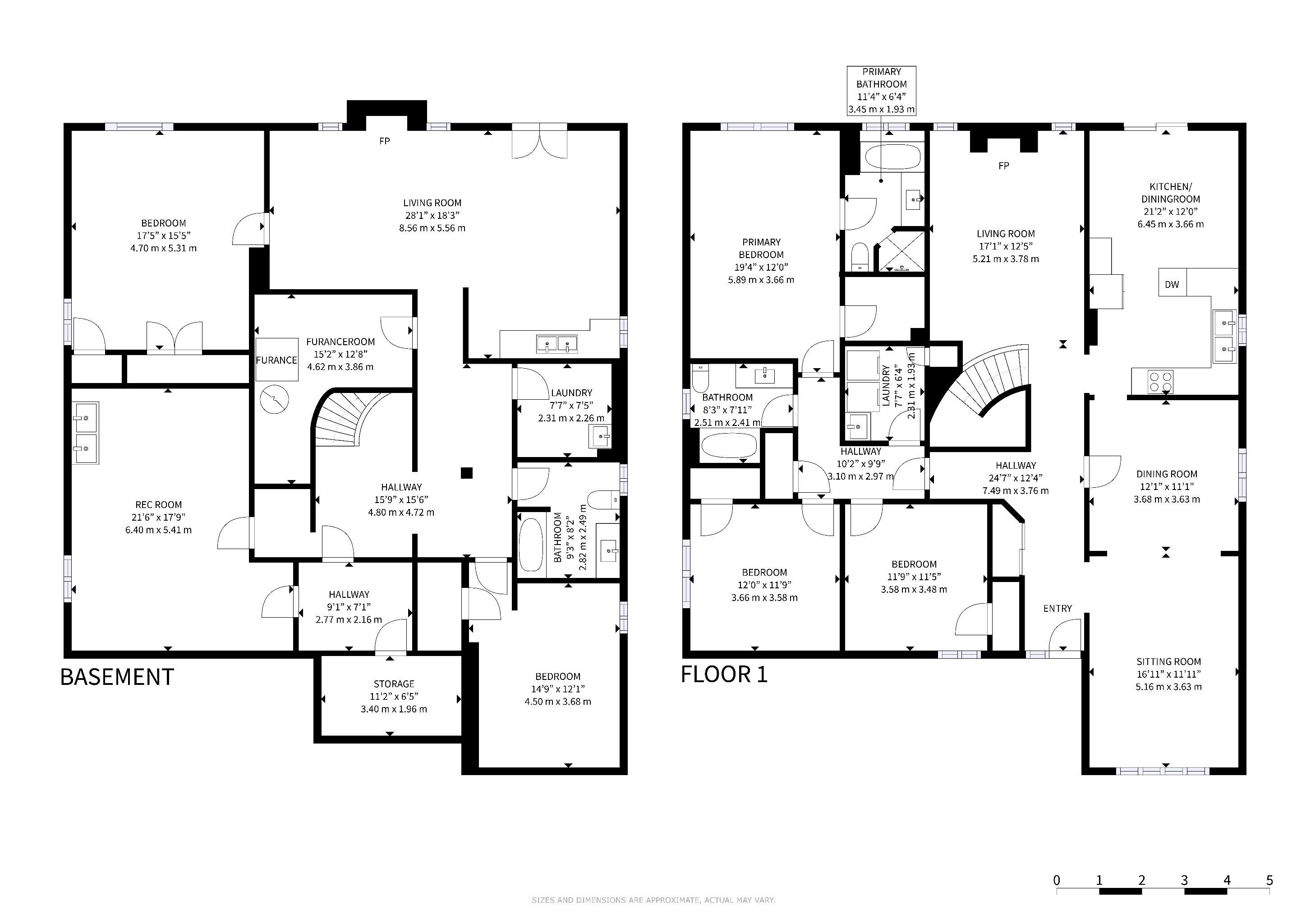
 Floorplan
 Details
$1,625,000.00
3+2    3
Building type:  Detached Bungalow
Garage(s):  Double Car Garage
Land size:  55.61 x 130.57 Feet
Description:
Welcome to 9 Coates Crescent. This meticulously maintained, all-brick bungalow is situated on a premium 55-foot lot in the heart of Richmond Hill’s prestigious Oak Ridges Lake Wilcox community. The exterior boasts a private, no-sidewalk driveway and an inviting enclosed porch, leading into a sun-drenched interior adorned with gleaming laminate and ceramic flooring. Designed for both comfort and entertaining, the grand living and dining areas offer a seamless flow, while the sun-filled eat-in kitchen features a walk-out to a private balcony. The primary suite serves as a true retreat, complete with a walk-in closet and a 4-piece ensuite.

A defining feature of this residence is the fully finished 2-bedroom walk-out basement. This bright, self-contained space includes a private entrance, secondary kitchen, separate laundry, and an expansive living area—making it the perfect solution for a nanny suite, in-law quarters, or multi-generational living. Additionally, a large unfinished workshop offers the versatile potential to be converted into further living space or a home gym.

Experience the very best of Oak Ridges with world-class amenities just minutes away. This home is steps from top-rated schools, Highway 404, and the scenic Lake Wilcox Promenade. Residents enjoy an unparalleled active lifestyle with access to Bond Lake, forest trails, and the Oak Ridges Community Centre—offering everything from swimming and skating to equestrian trails and cross-country skiing.

Bring your personal vision to this original masterpiece and secure your place in one of Richmond Hill's most sought-after enclaves.
 Schools
 Map