MOBIRISE
Home
Photos
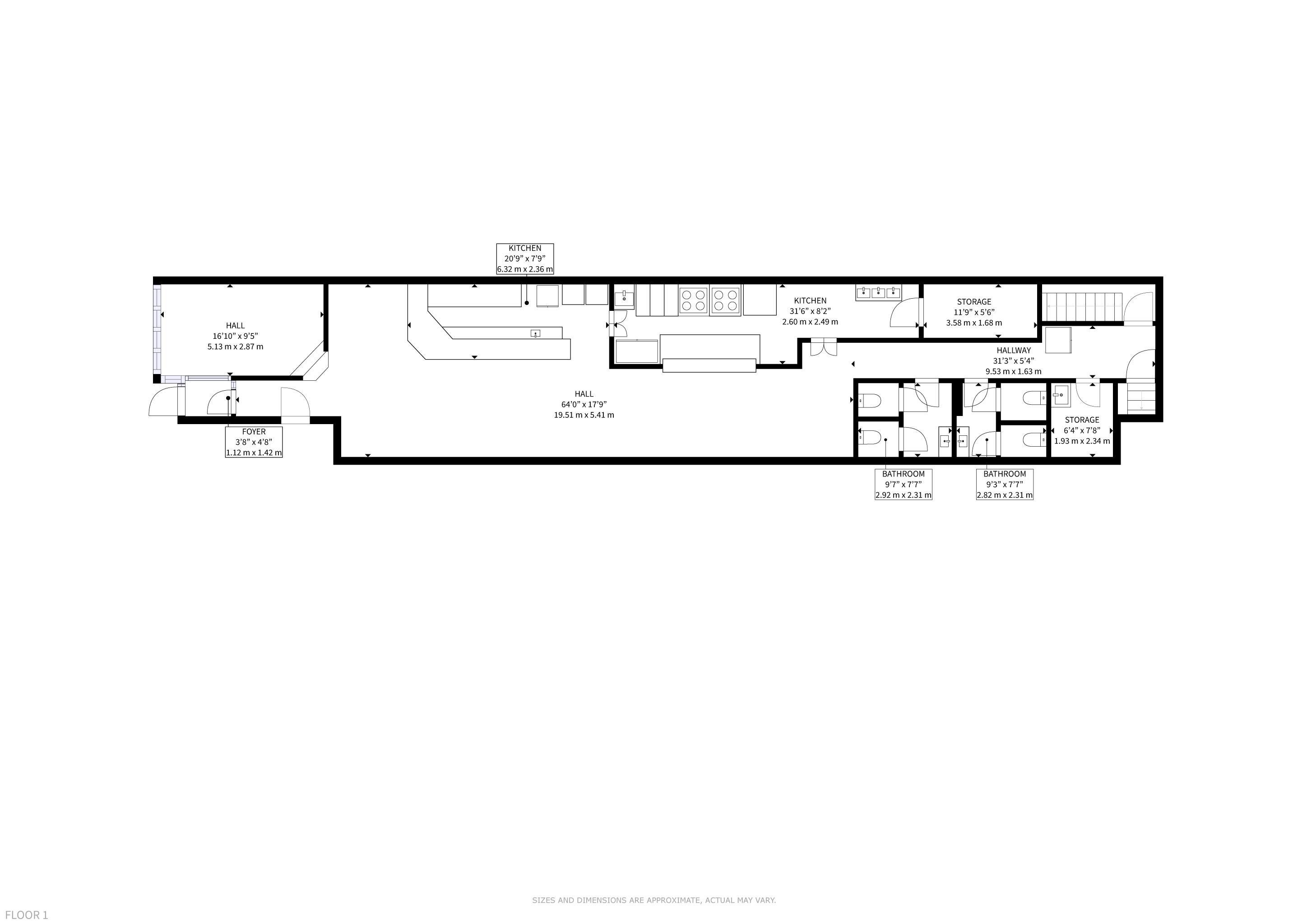
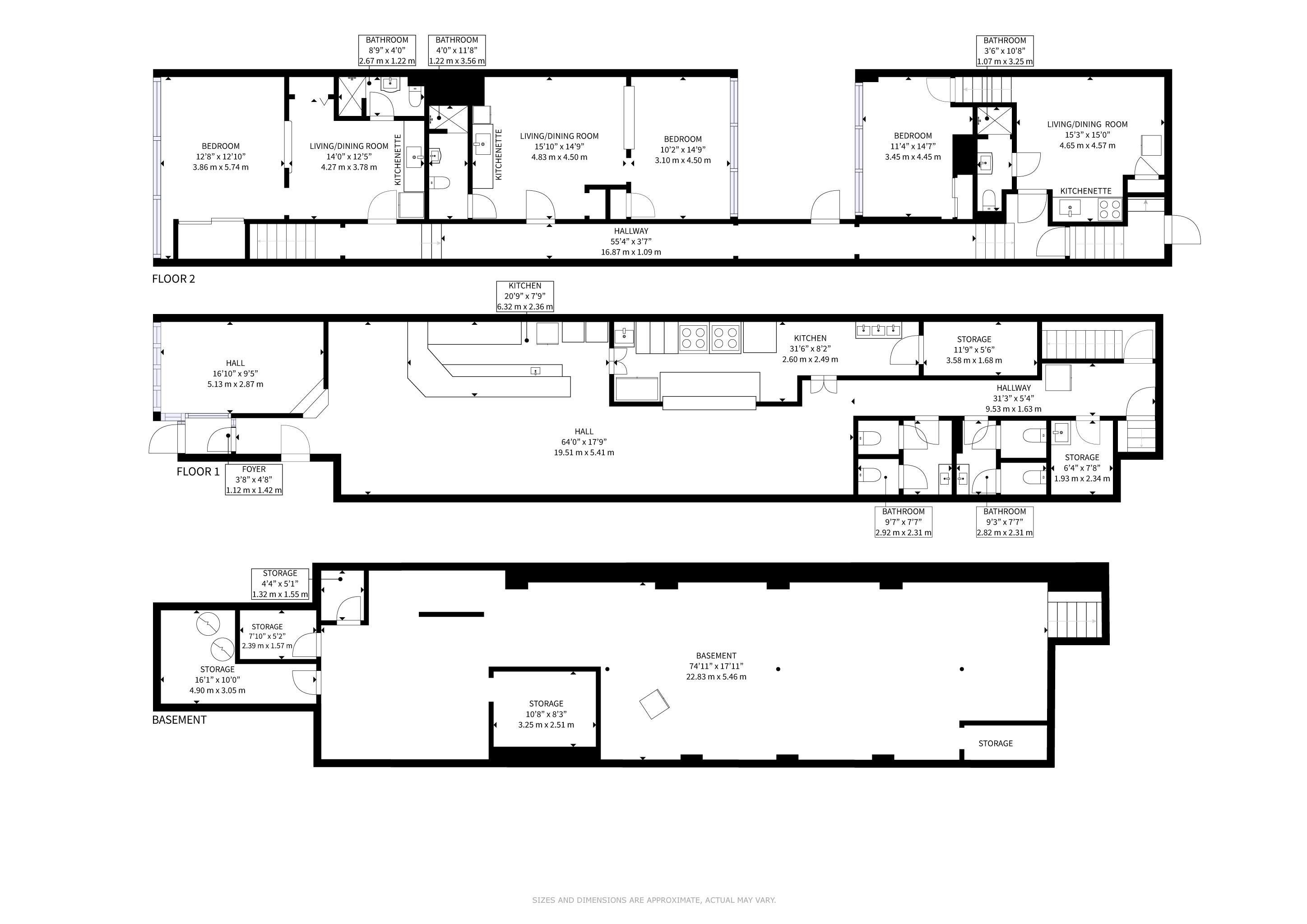
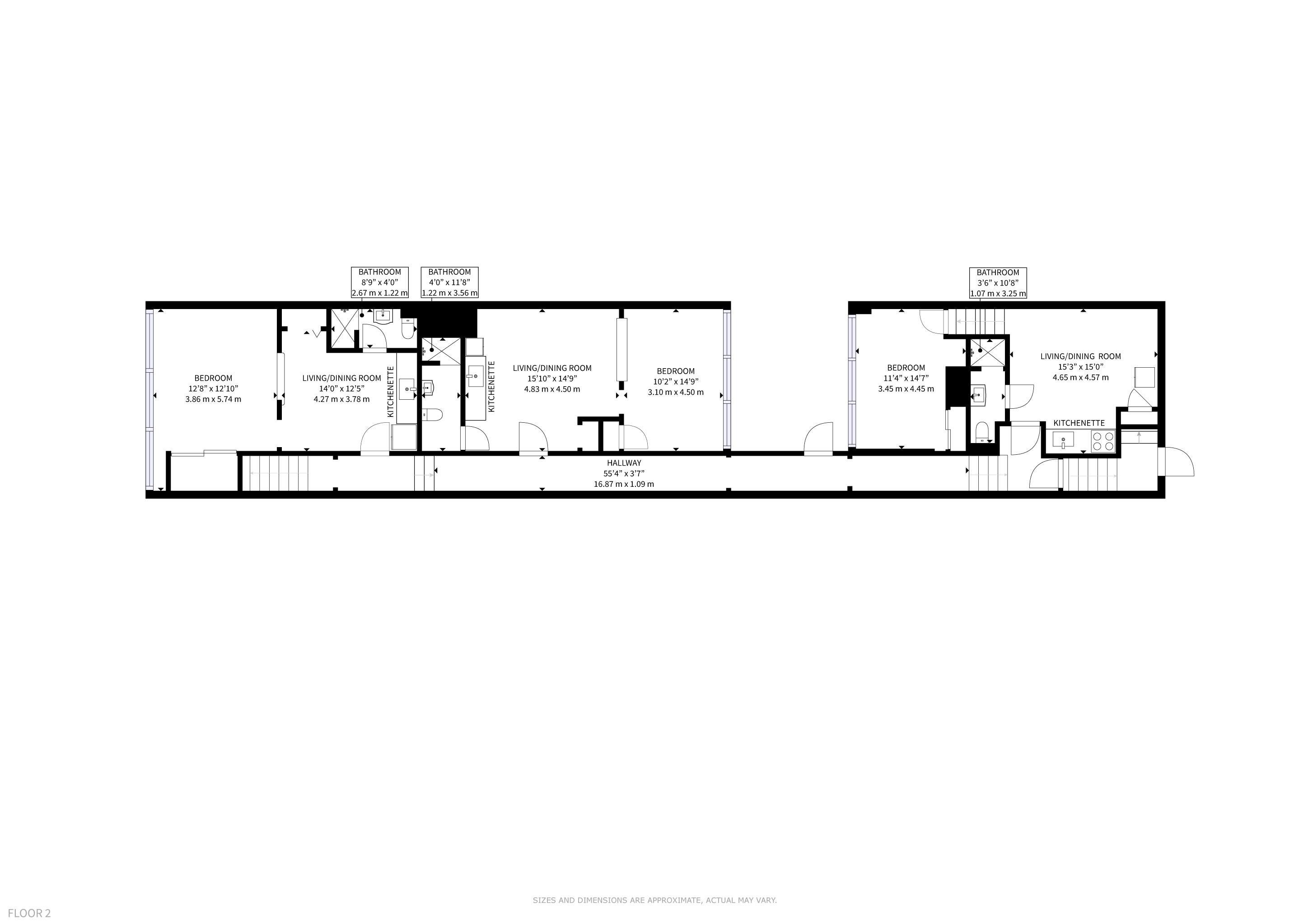
Floorplan
Schools
Map
566 Queen St W
Toronto
Photos
x
Close
Show all photos
Floorplan
x
Close
Schools
Map