MOBIRISE
Home
Photos
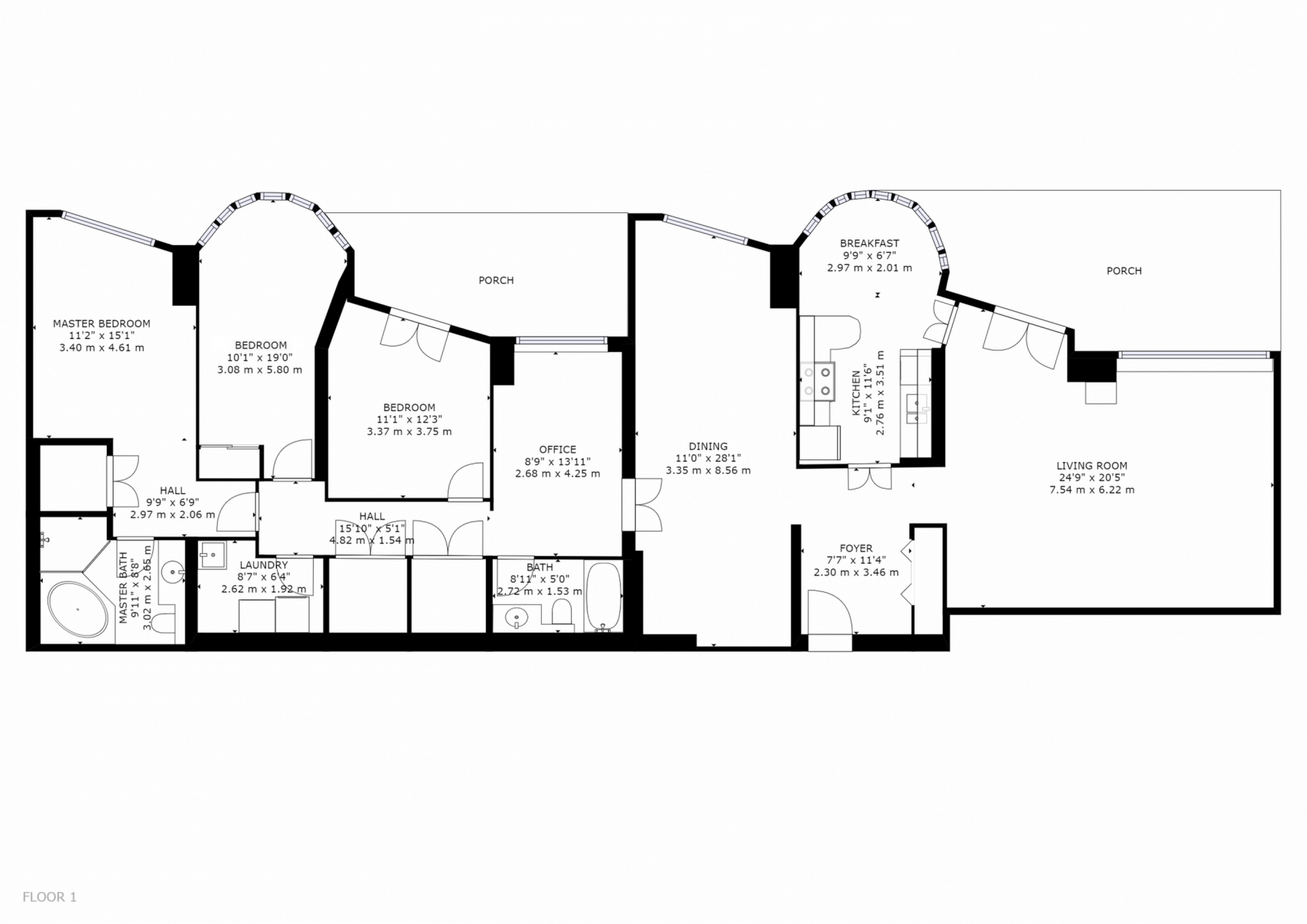
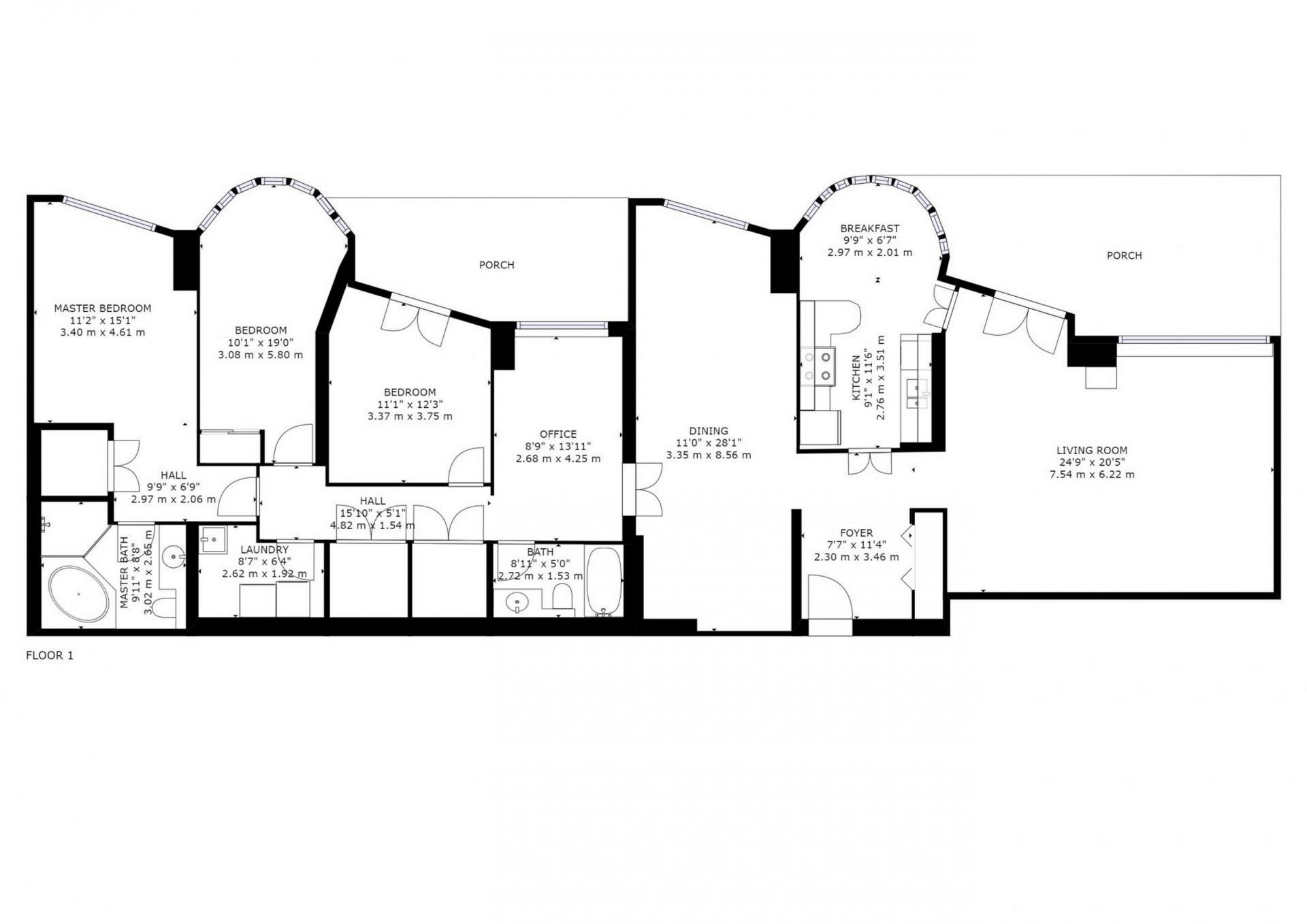
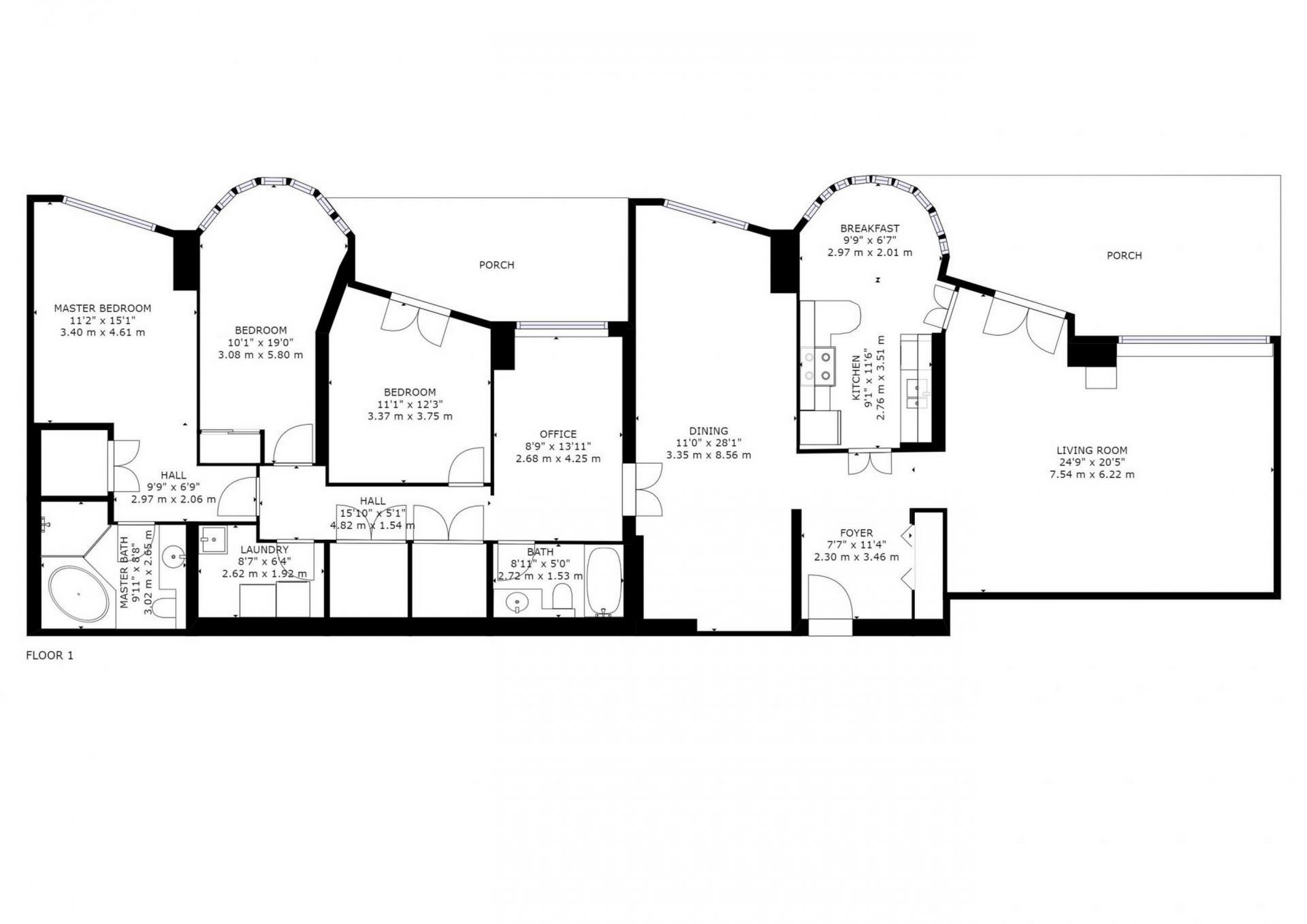
Floorplan
Schools
Map
Details
111-35 Boardwalk Drive
Toronto
Photos
x
Close
Show all photos
Floorplan
x
Close
Details
Schools
Map