MOBIRISE
Home
Photos
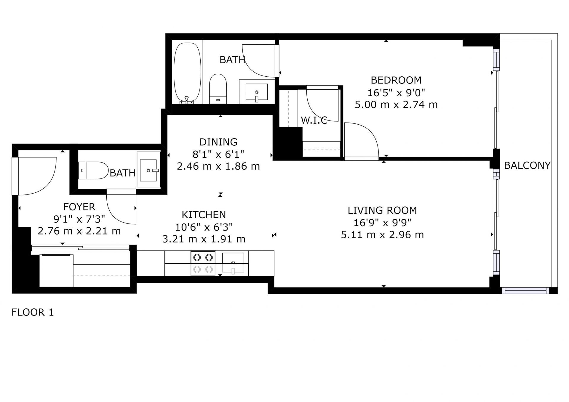
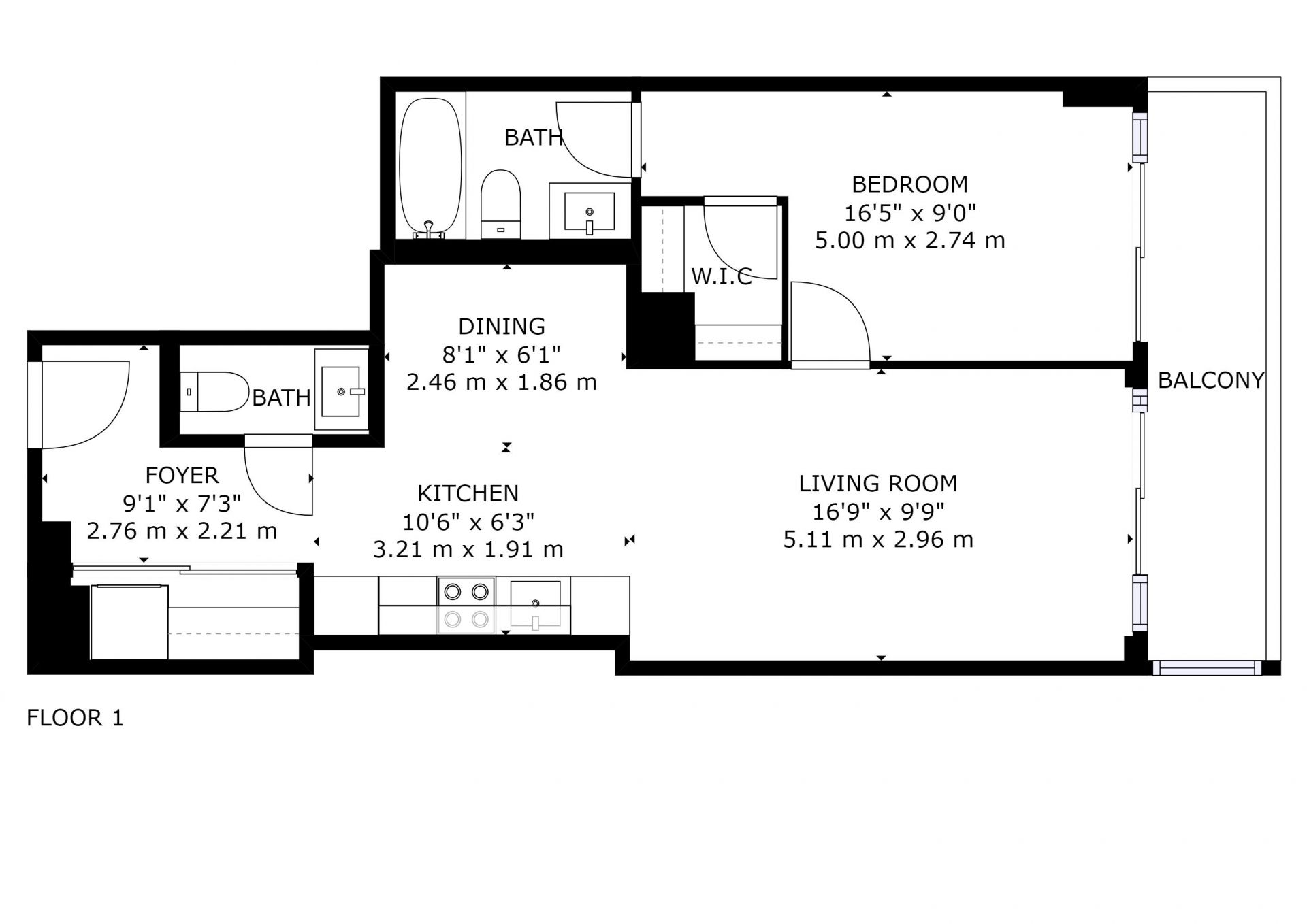
Floorplan
Schools
Map
603-151 Avenue Road
Toronto
Photos
x
Close
Floorplan
x
Close
Schools
Map