MOBIRISE
Home
Photos
360°
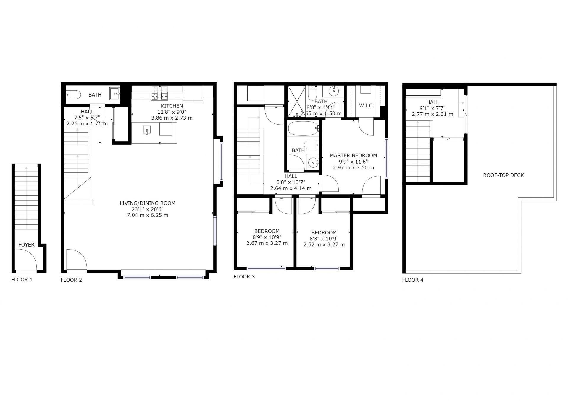
Floorplan
Schools
Map
3-130 Long Branch Avenue
Etobicoke
Photos
x
Close
360° Virtual Tour
Floorplan
x
Close
Schools
Map