MOBIRISE
Home
Photos
360°
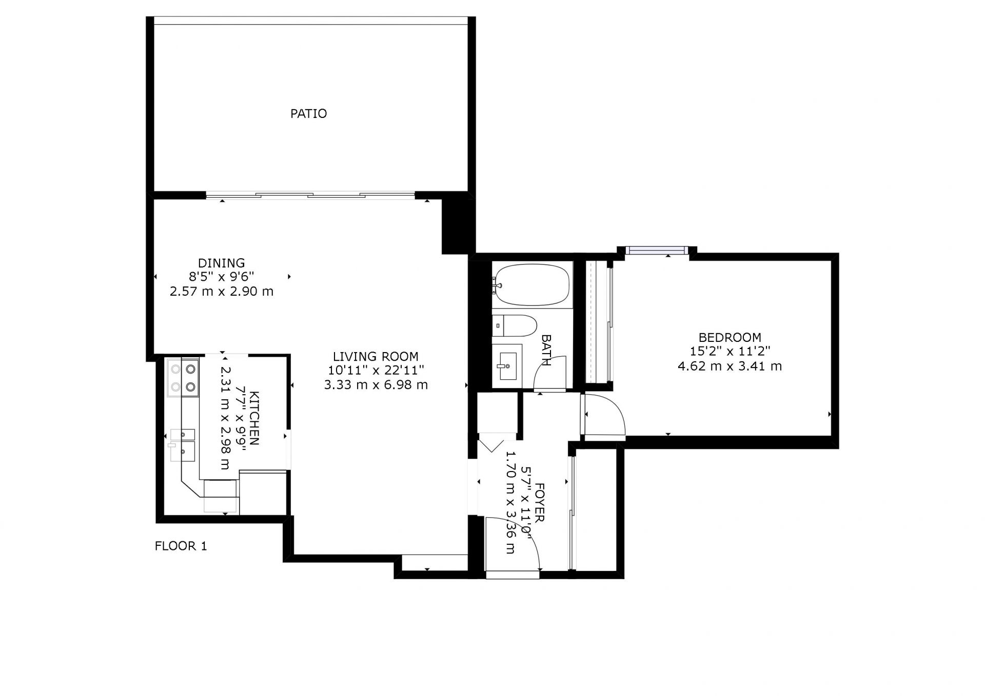
Floorplan
Schools
Map
1201-350 Seneca Hill Drive
North York
Photos
x
Close
360° Virtual Tour
Floorplan
x
Close
Schools
Map