MOBIRISE
Home
3D
Photos
360°
Floorplan
Schools
Map
225 Dunview Avenue
North York
3D Tour
Photos
x
Close
Show all photos
360° Virtual Tour
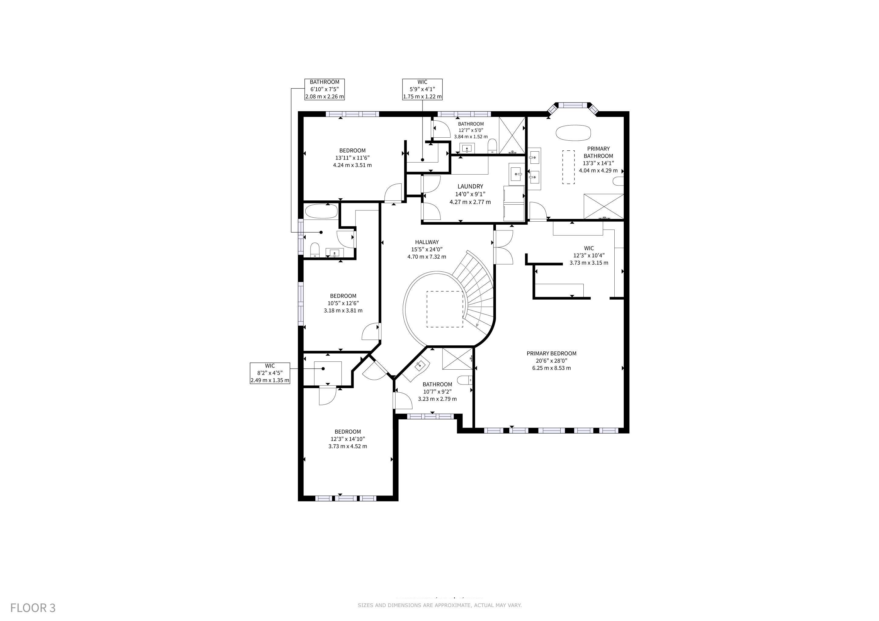
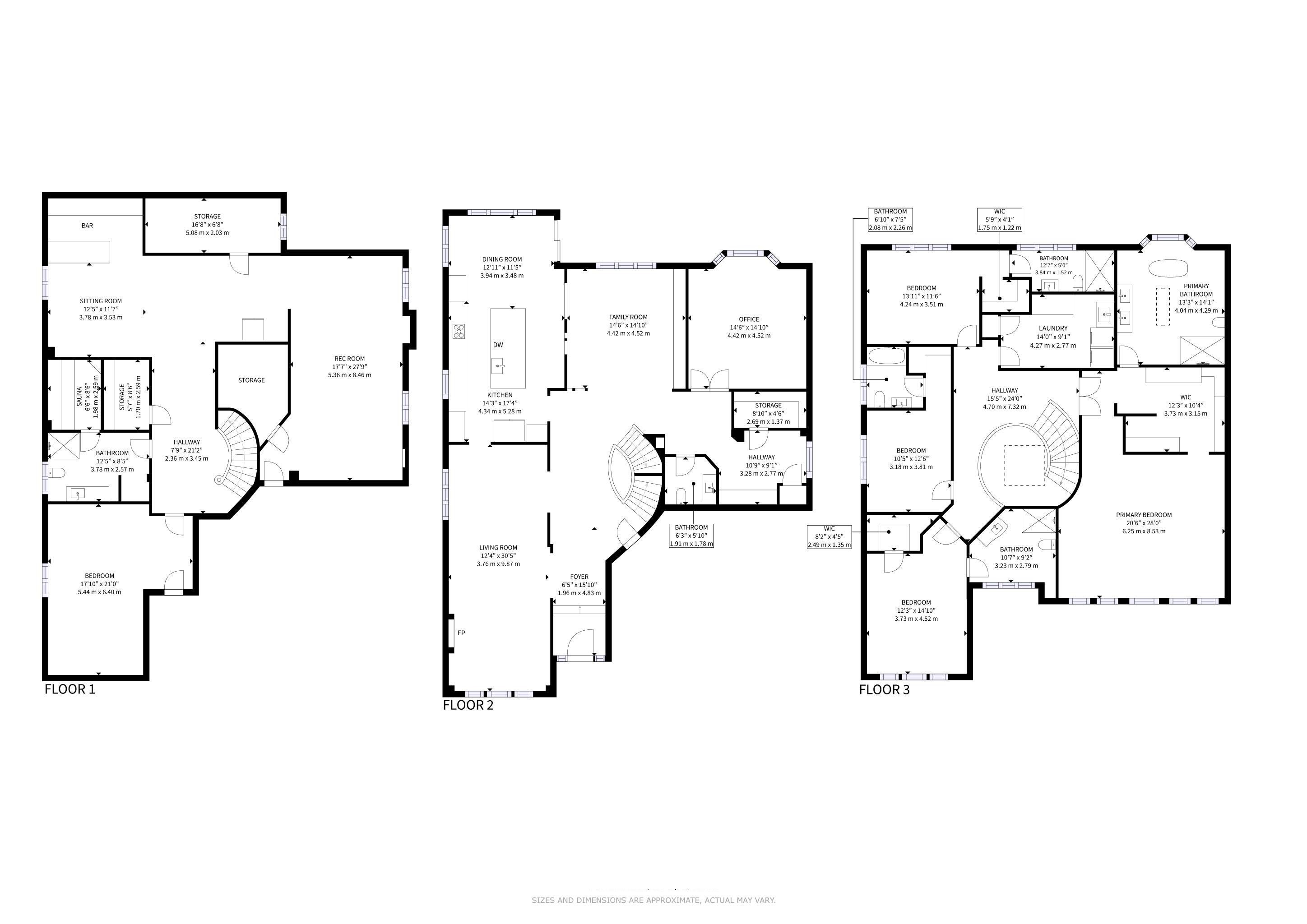
Floorplan
x
Close
Schools
Map