MOBIRISE
Home
Photos
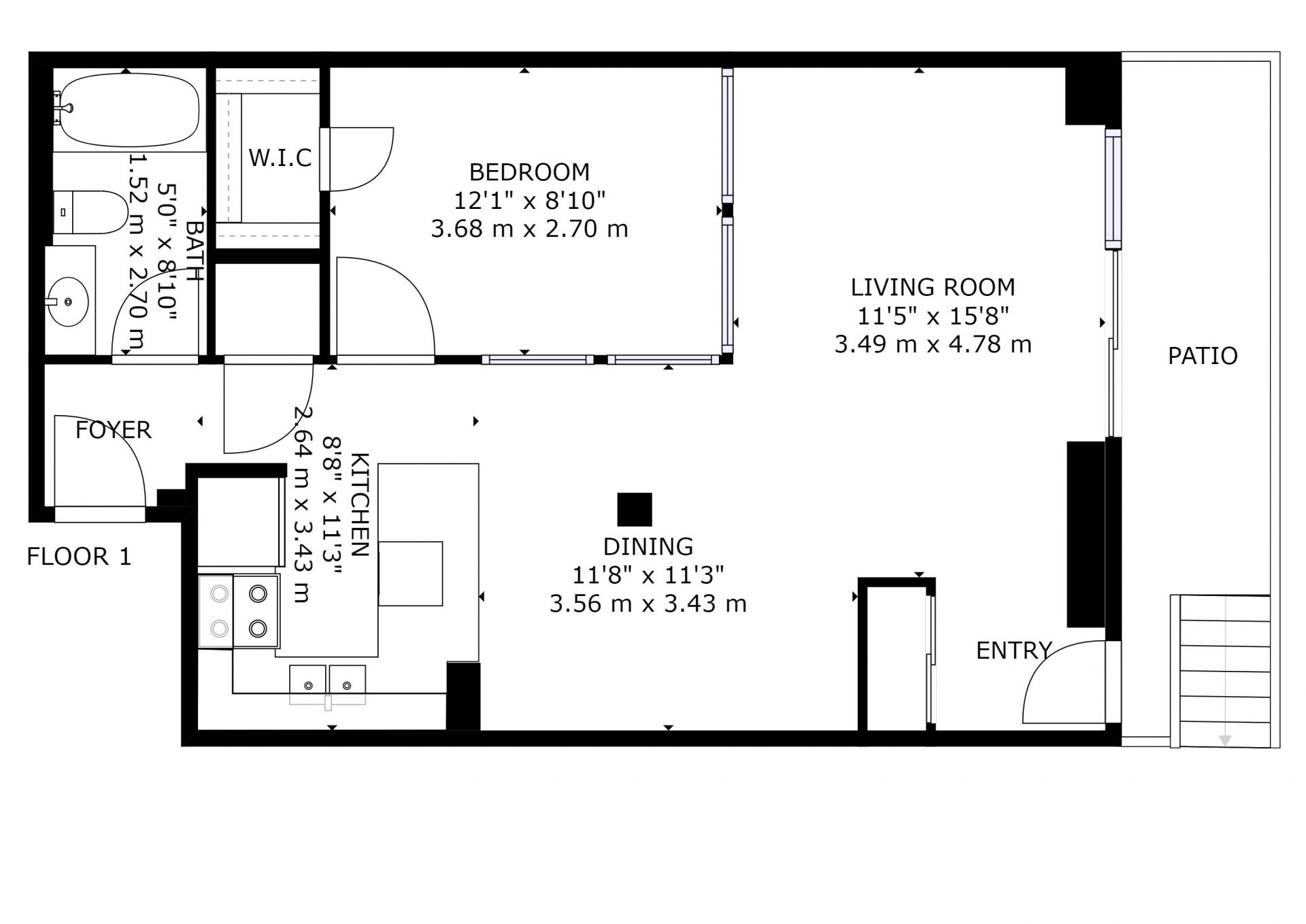
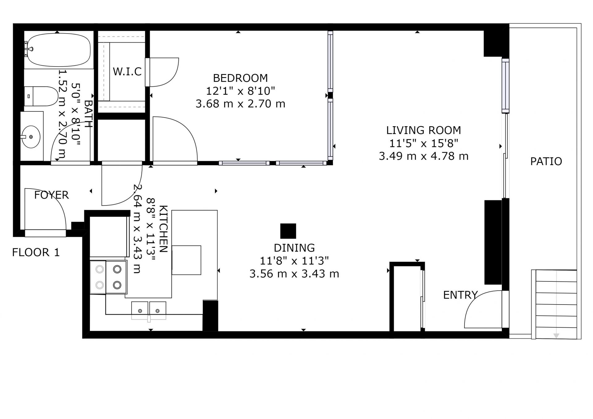
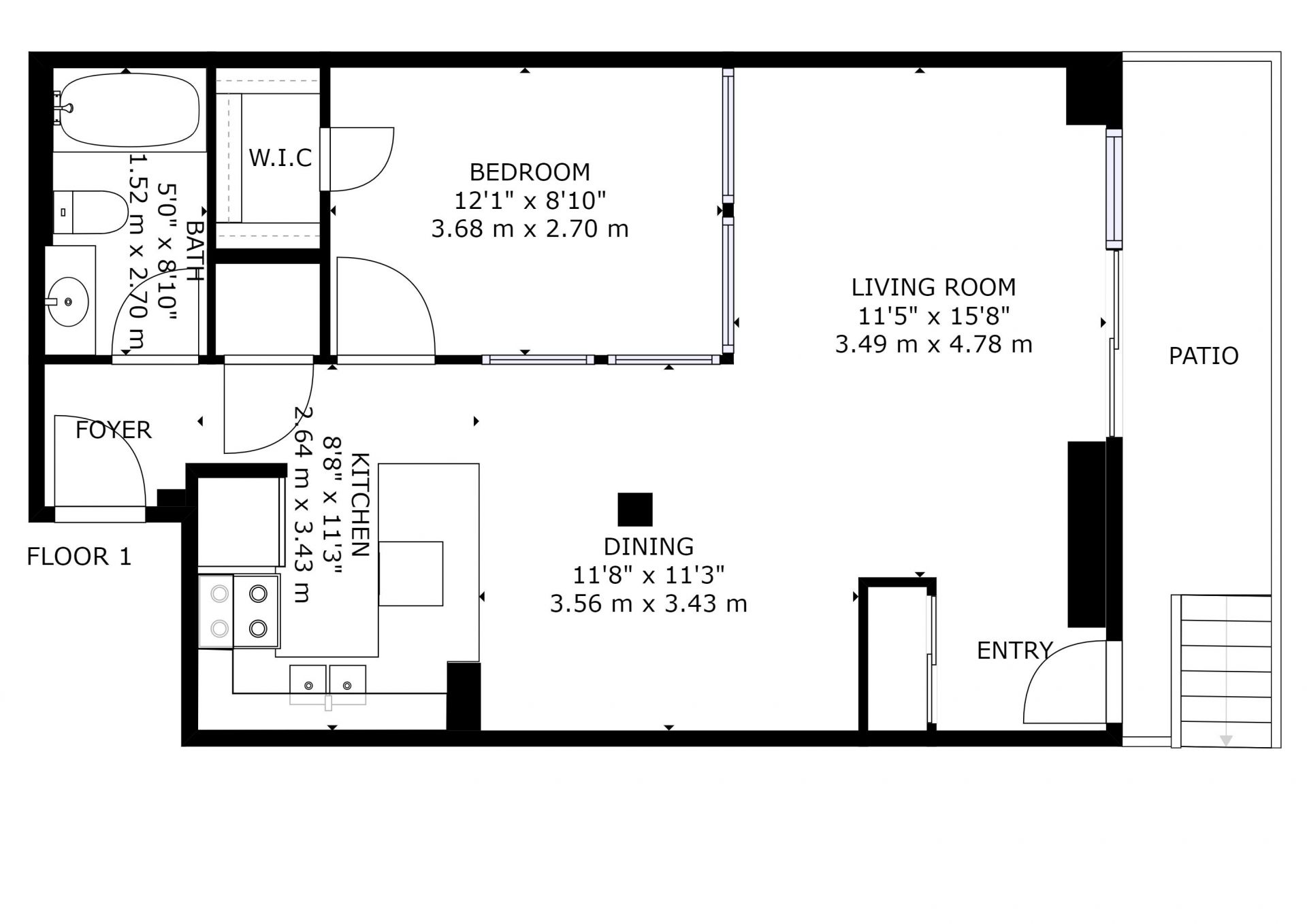
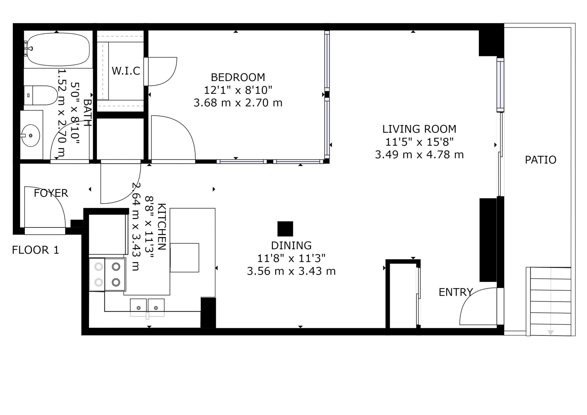
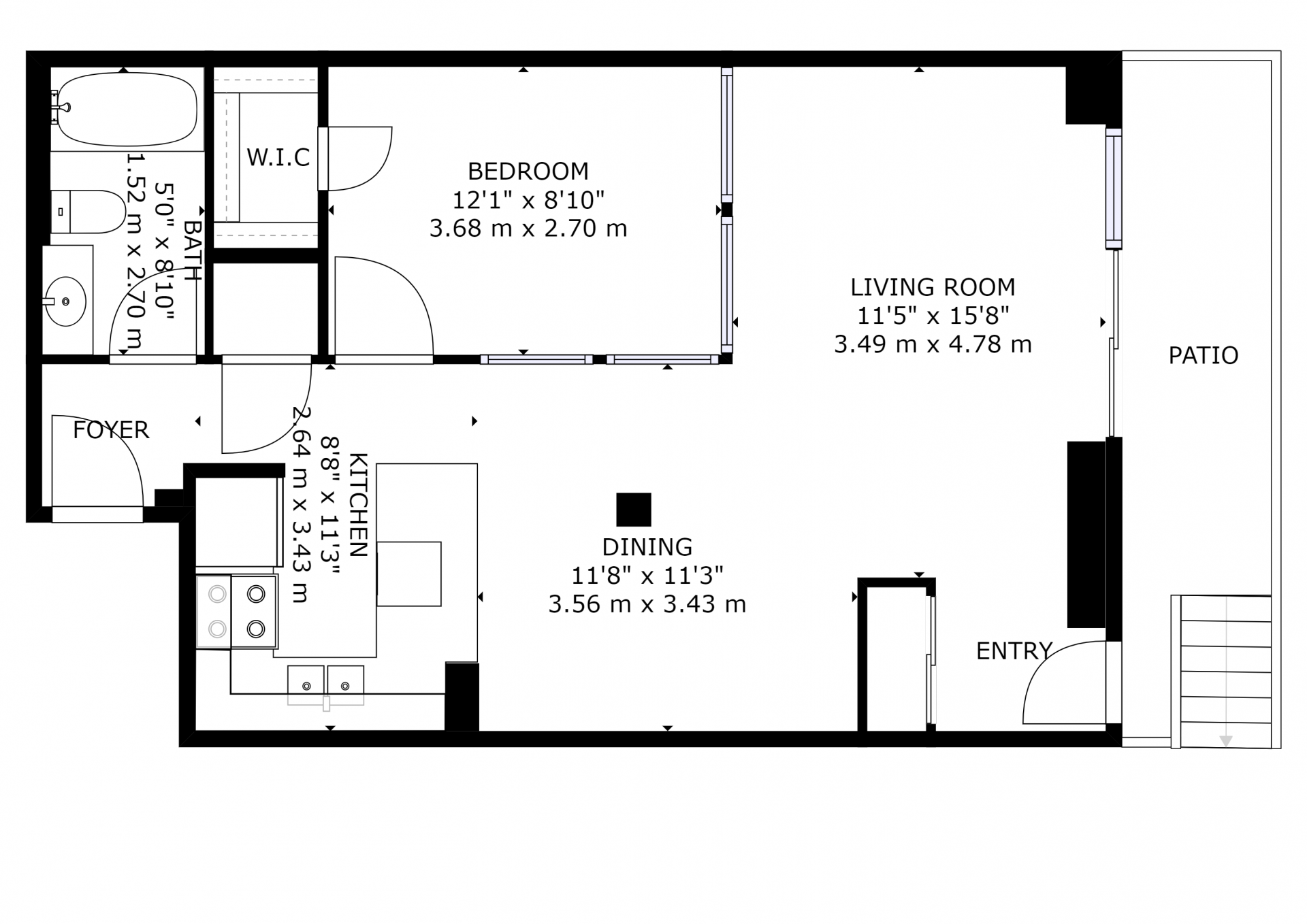
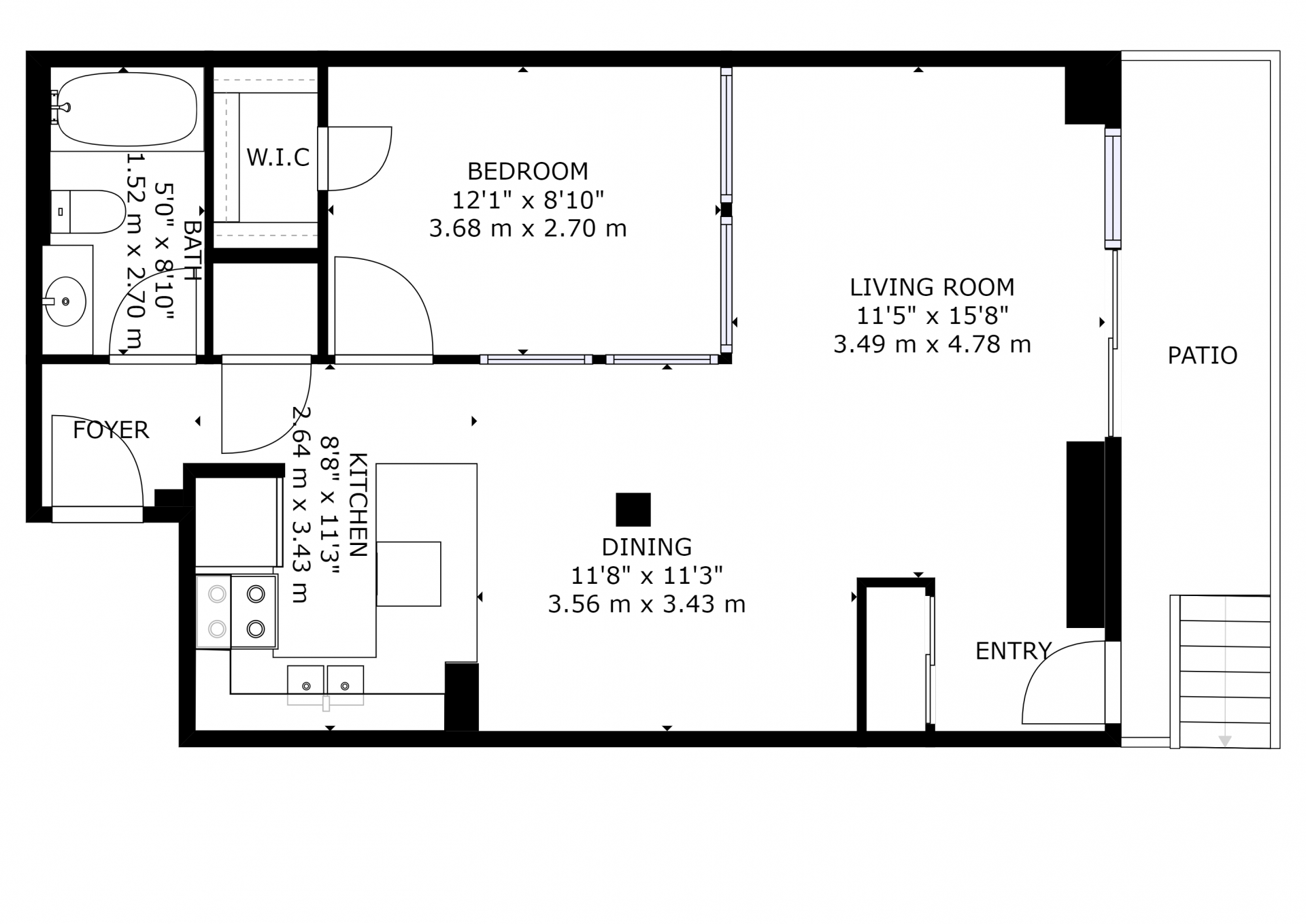
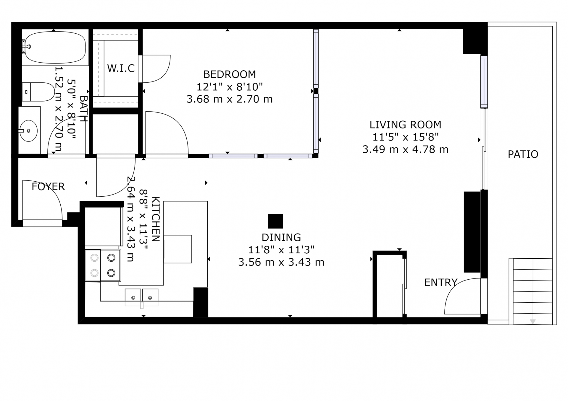
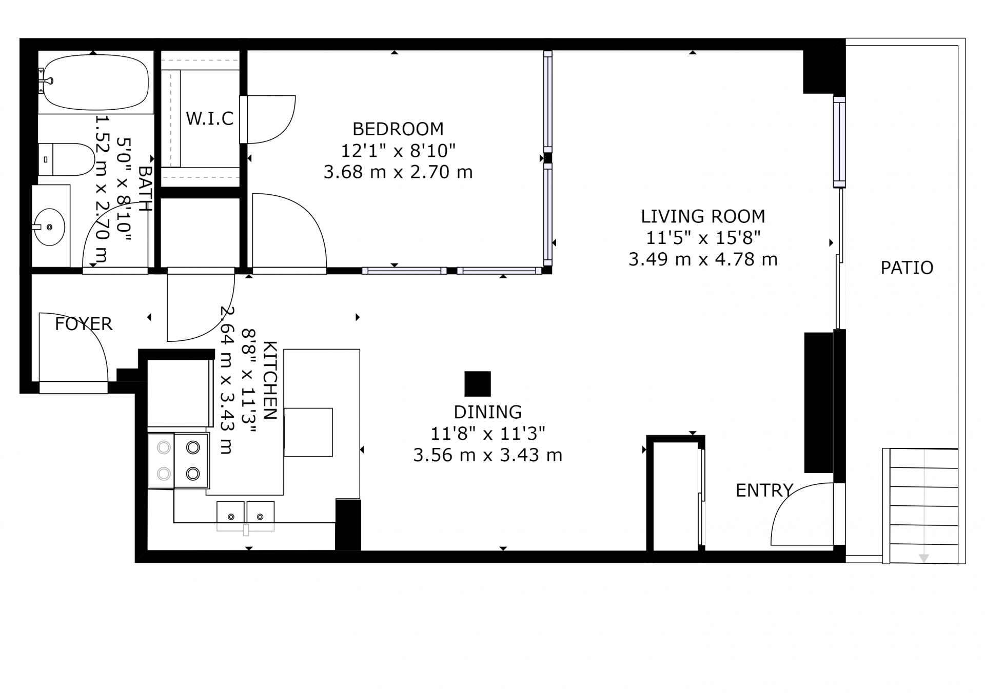
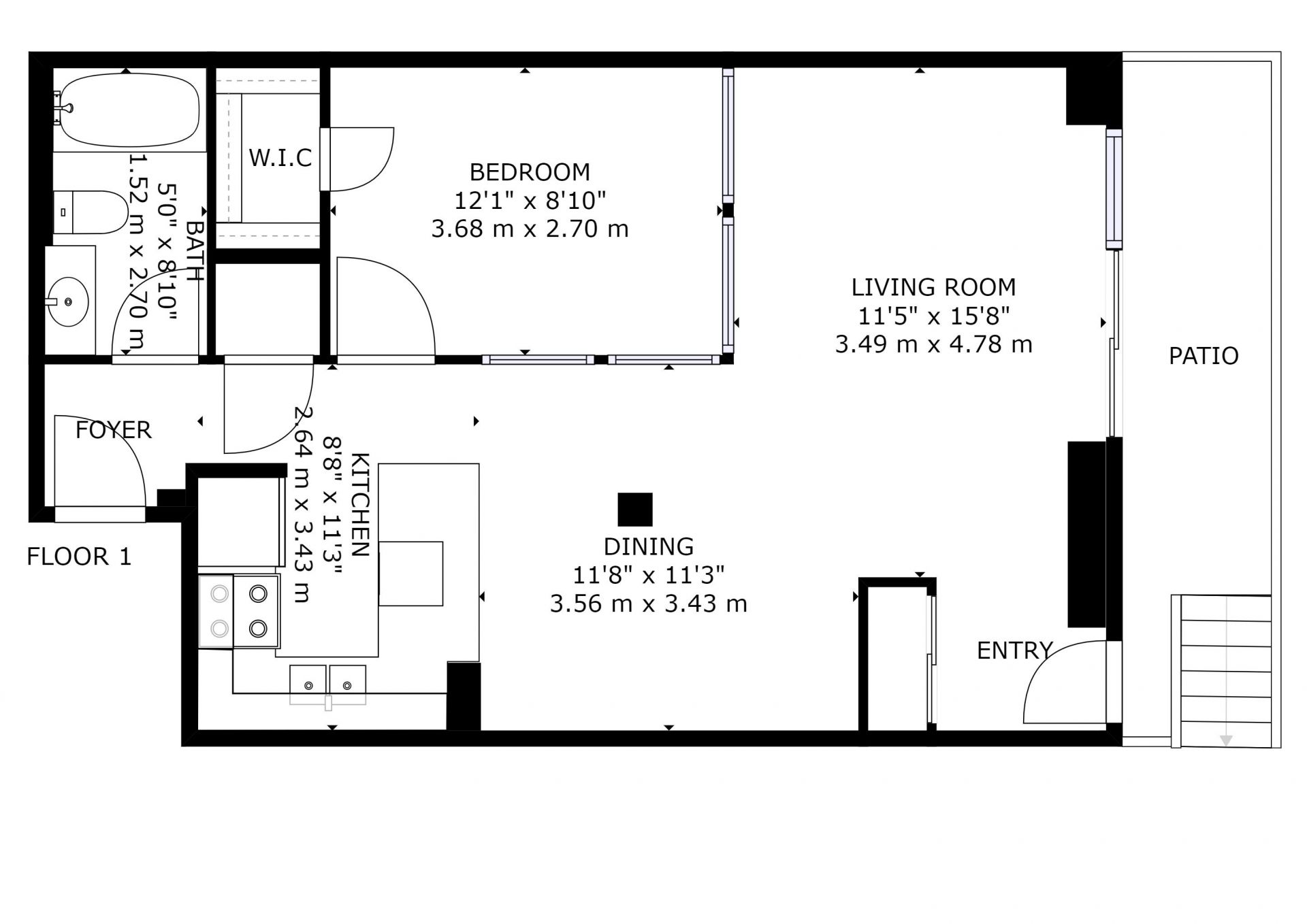
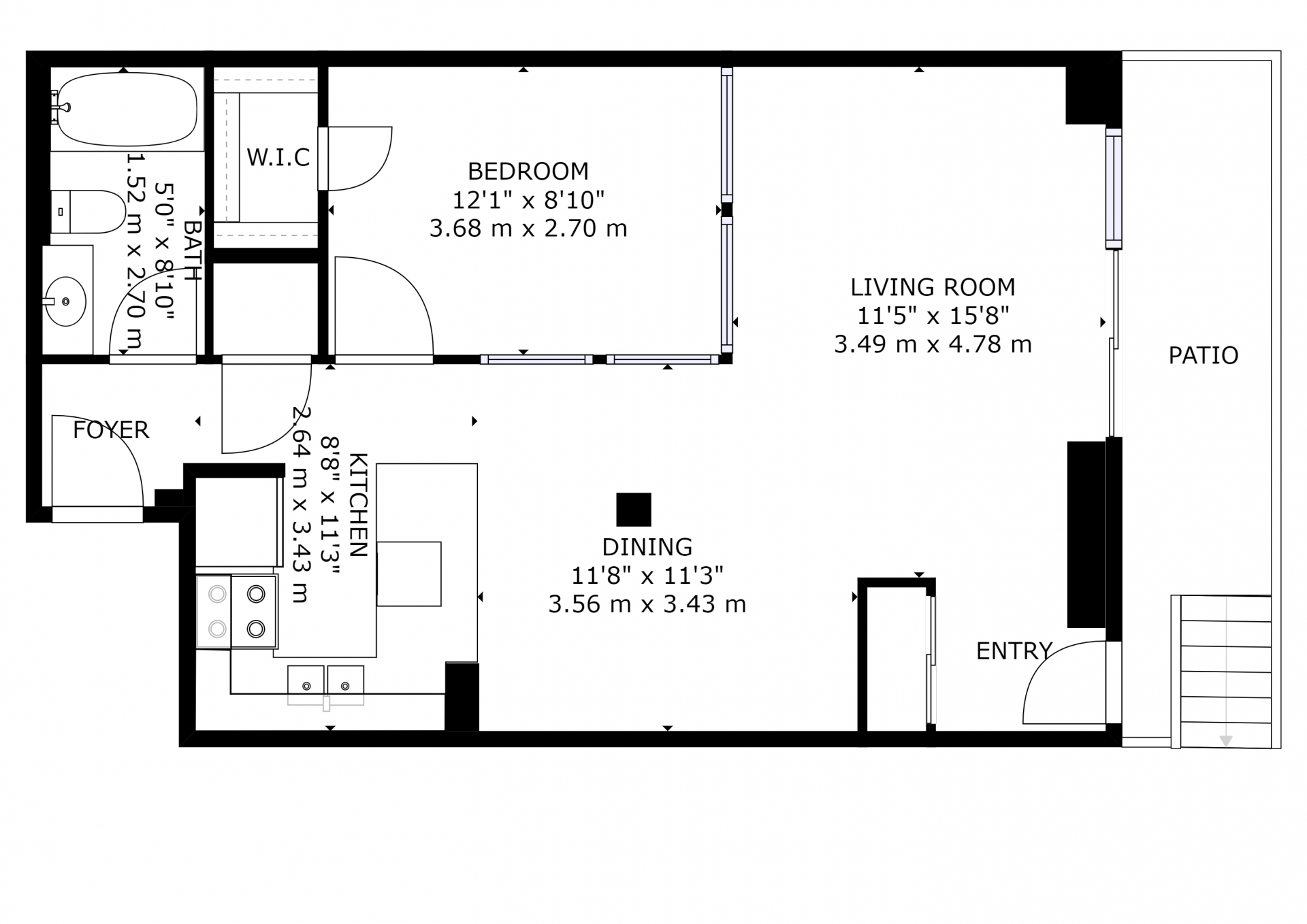
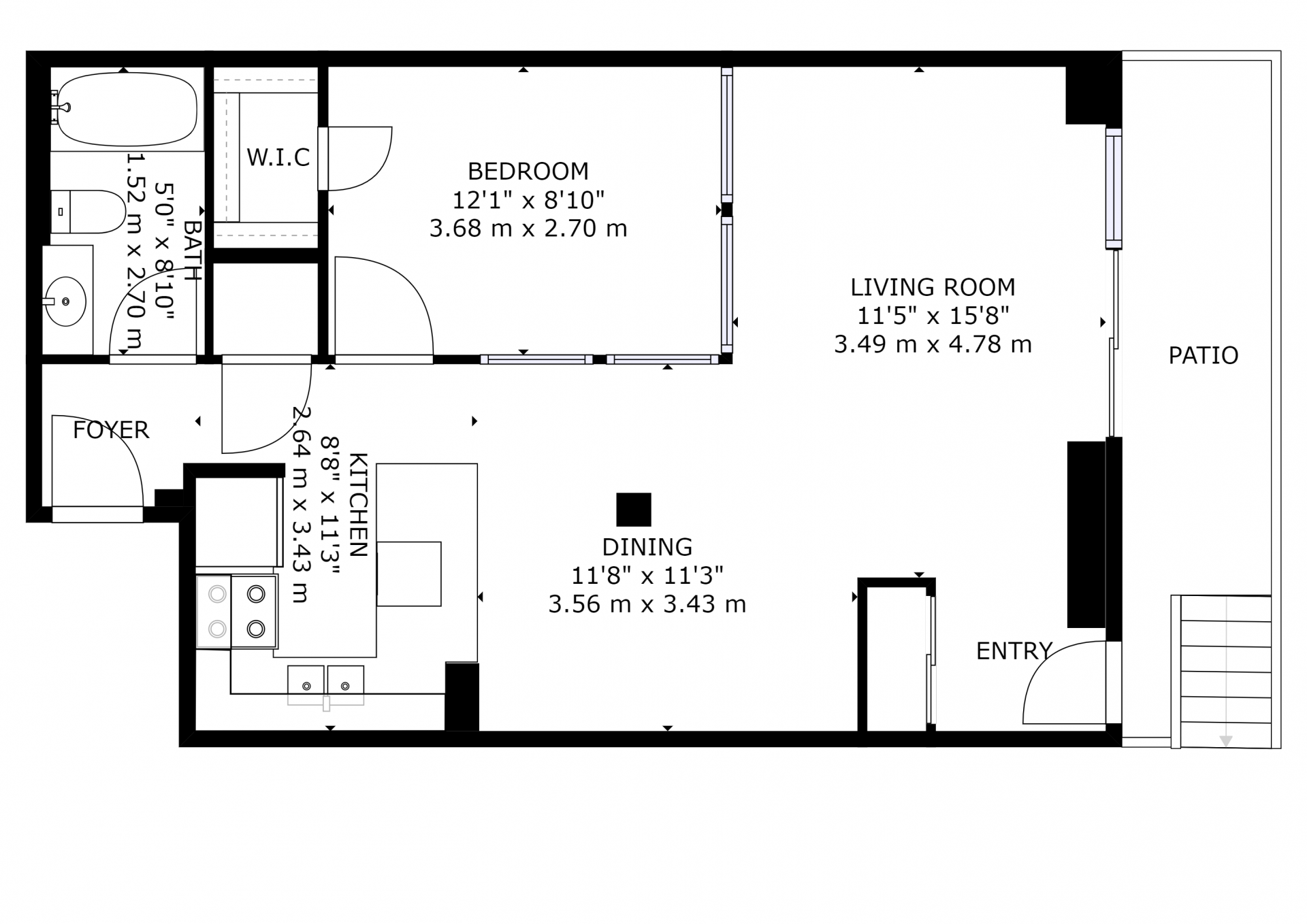
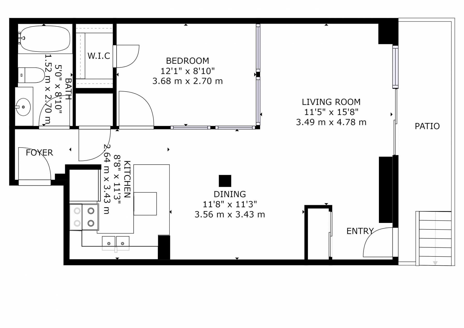
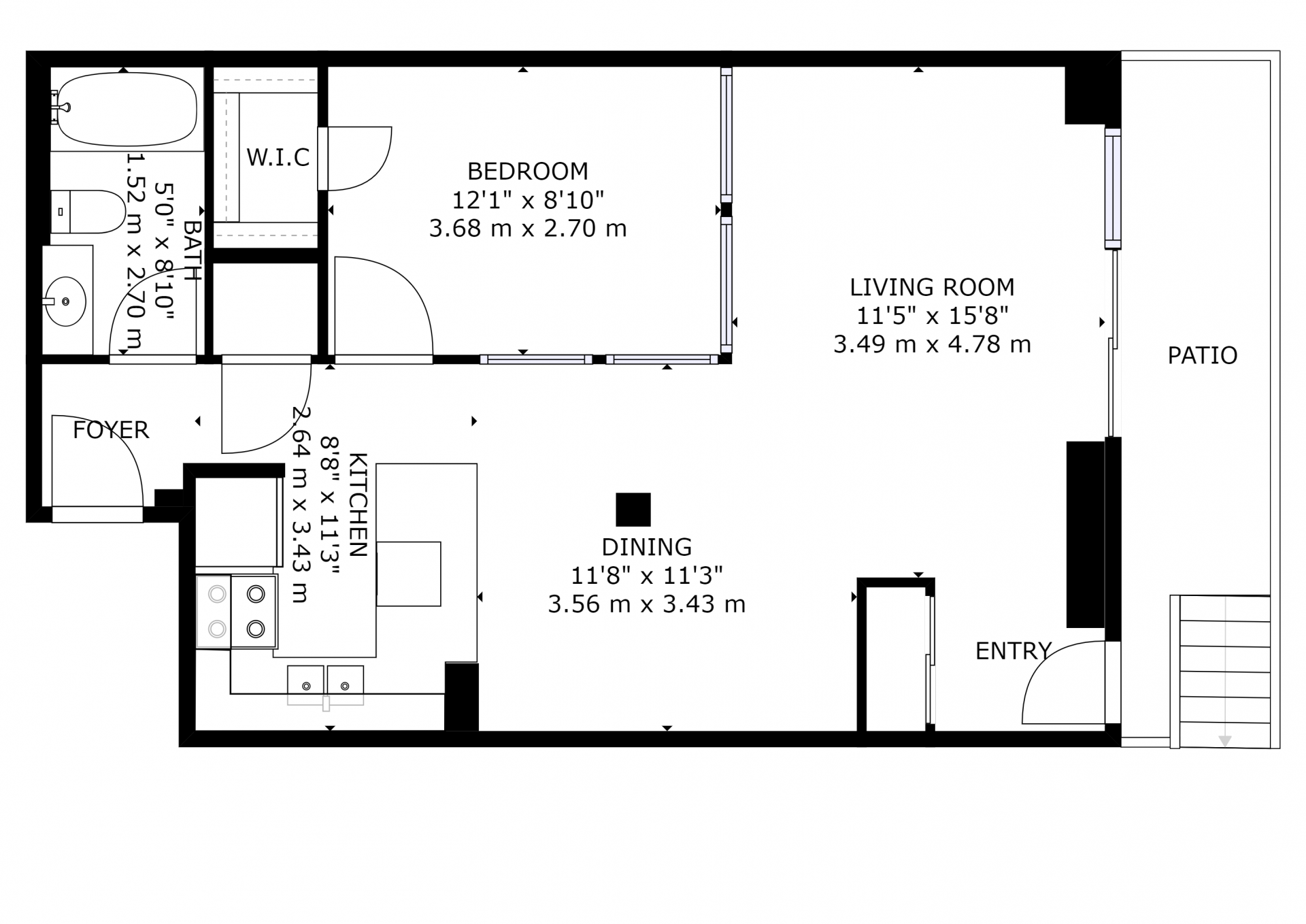
Floorplan
Schools
Map
112 Massey Street
Toronto
Photos
x
Close
Floorplan
x
Close
Schools
Map